The Home Design

Creating Beautiful Spaces
Product Specifications
Width

42 ft

Depth

55 ft

Plot Area

2310 sqft

Floors

2

Total Builtup Area

2310 sqft

Building Type

Residential

Building Category

House

Style

Luxury

Cost

Medium

Facing

East

Frequently Asked Questions

Our house plans include detailed floor plans, elevation drawings, and basic structural details.

Yes, we offer customization services to modify the design according to your requirements.

We provide construction supervision services to ensure quality implementation of the design.

Digital plans are delivered within 24-48 hours after payment confirmation.

Yes, structural calculations are included with working drawings package.

We provide plans in PDF, DWG, and DXF formats for maximum compatibility.

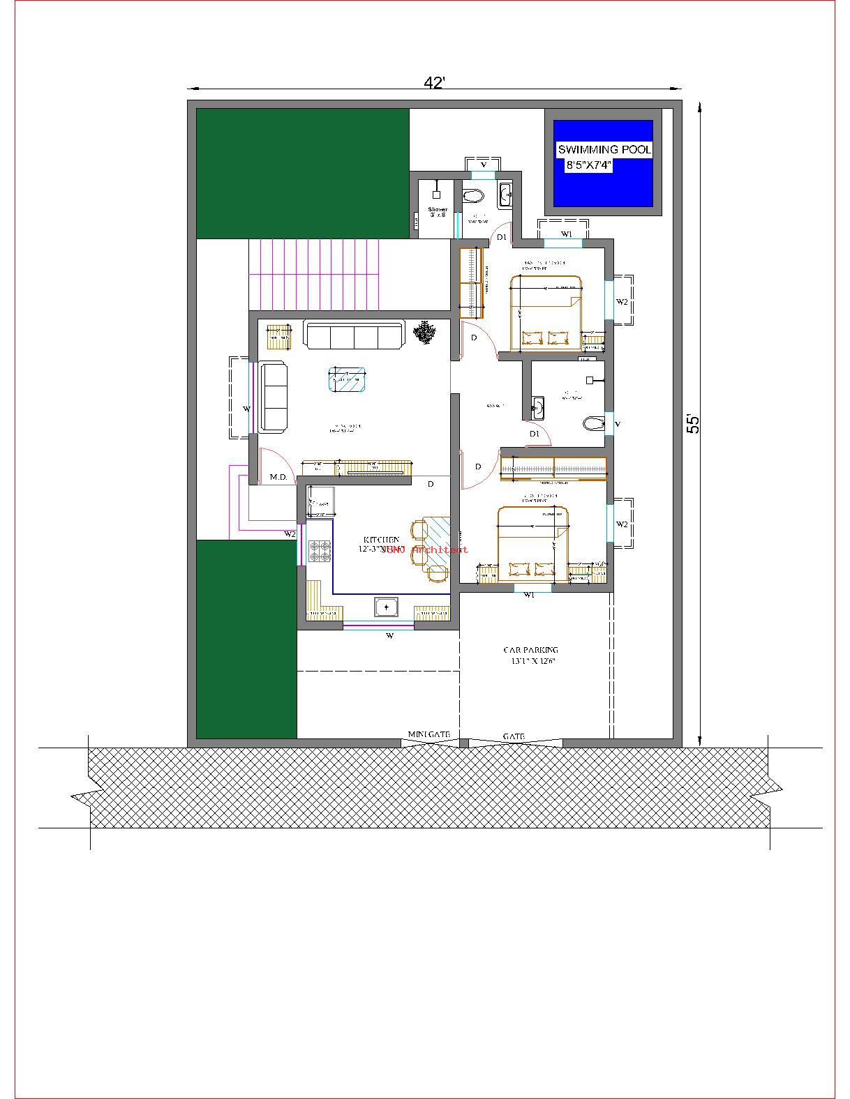
Modern 2-Bedroom House Plan with Swimming Pool & Car Parking | 42’ × 55’ Plot

This is a smartly designed modern residential house plan built on a 42’ × 55’ plot, offering an excellent balance of comfort, functionality, and contemporary lifestyle features.

The layout includes a spacious living area that opens smoothly into the central part of the house, creating a bright and welcoming atmosphere. The home features two well-planned bedrooms, both designed for privacy and comfort, with attached and common bathrooms placed efficiently for daily convenience.

A modern kitchen with a dining space is thoughtfully planned to ensure ease of movement and practical usage. The internal circulation is smooth, making the house feel open and well-connected despite the compact plot size.

One of the key highlights of this plan is the private swimming pool, which adds a luxurious touch and enhances the overall living experience. The design also includes dedicated car parking, green/open spaces, and proper ventilation from all sides.

This house plan is ideal for small to mid-size families looking for a modern, stylish home with premium features on a compact plot.

Estimated Cost of Construction
₹ 60 - 70
80% OFF
Plan Customization Package
₹3,975 ₹795

Get your floor plan customized according to your specific needs. We can modify room layouts, door/window positions, and dimensions while maintaining structural integrity.

✓ Up to 2 Free Revisions

50% OFF
Editable CAD Files
₹6,590 ₹3,295

Download fully editable CAD files with detailed dimensions and furniture layouts. Perfect for architects and engineers who want to make their own modifications.

✓ DWG & DXF Format Files

Product Reviews

Customer Reviews (0)

Read what our customers say about this product

No reviews yet

Be the first to share your experience!

Frequently Asked Questions

Our house plans include detailed floor plans, elevation drawings, and basic structural details.

Yes, we offer customization services to modify the design according to your requirements.

We provide construction supervision services to ensure quality implementation of the design.

Digital plans are delivered within 24-48 hours after payment confirmation.

Yes, structural calculations are included with working drawings package.

We provide plans in PDF, DWG, and DXF formats for maximum compatibility.